2024
Projekt: Klein
1 Appartment 2 Bäder
Umbau der Badezimmer in einem Dachgeschoss-Apartment – Neugestaltung der sanitären Objekte und Oberflächen.
Thema
Im Rahmen eines Dachgeschossausbaus wurde die Neugestaltung von zwei kleinen Badezimmern für ein Paar geplant, ein Dusch- und ein Wannenbad. Der Wunsch des Paares war es, beide Bäder getrennt zu halten, um eine flexible Nutzung zu gewährleisten. Ein Bad für jeden Partner, wobei das Duschbad auch als Gästebad fungieren soll.
Ziel
Das architektonische Ziel bestand darin, den begrenzten Raum optimal zu nutzen, eine großzügige Raumwirkung zu erzielen und gleichzeitig ausreichend Stauraum zu integrieren. Der Fokus lag auf einer klaren Gestaltungssprache, die Funktionalität und Ästhetik harmonisch miteinander verbindet.
Aufmaß
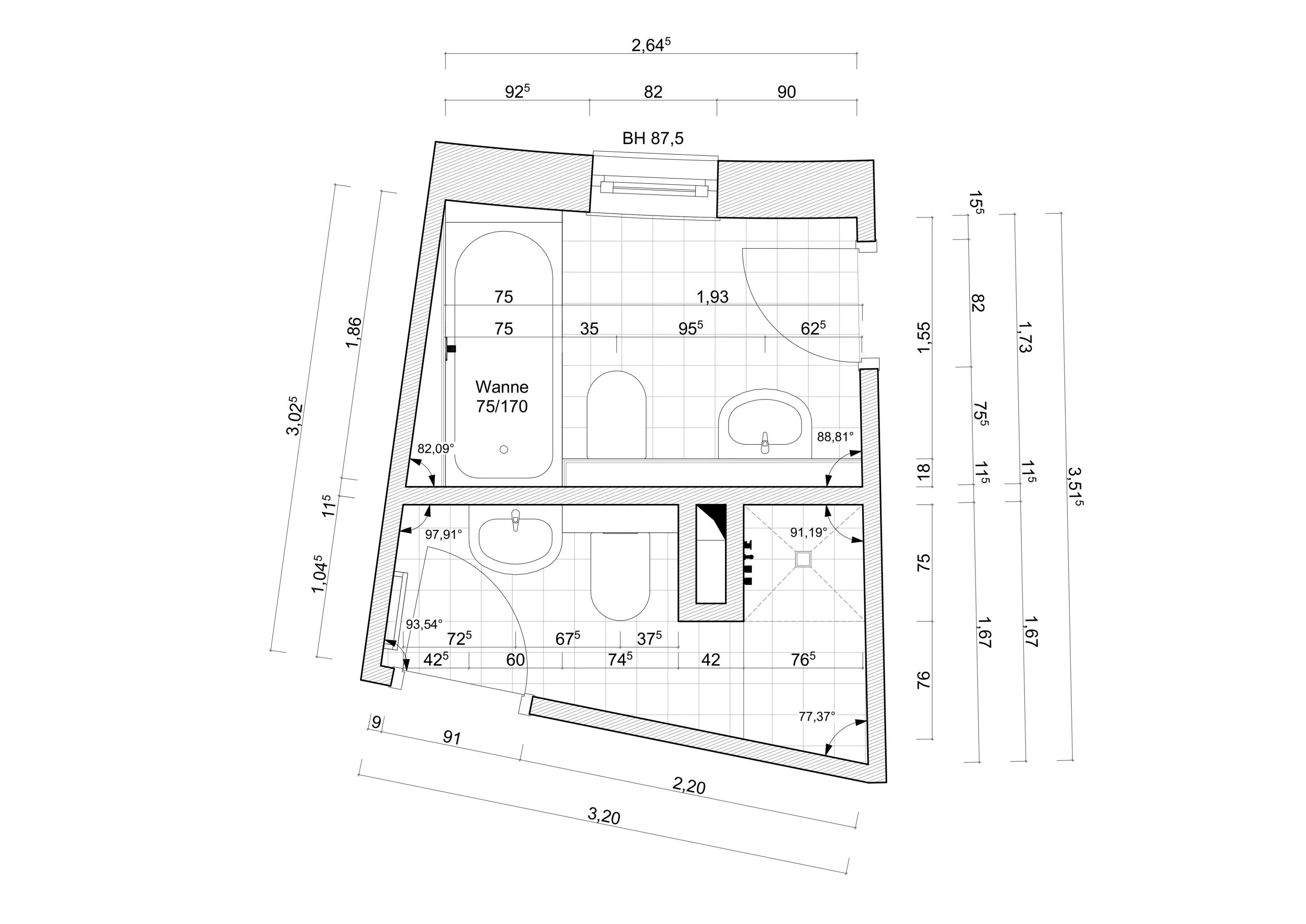
Aufgrund der begrenzten Planunterlagen und der kompakten Raumdimensionen war ein präzises Aufmaß unerlässlich. Die exakte Vermessung bis auf den Zentimeter war entscheidend, da die bestehende Raumstruktur und die Positionierung der Elemente im Wesentlichen beibehalten werden sollten.
Pläne vorhanden
Aufmaß Bäder
Bemusterung
Bei diesem Projekt stand die Materialbemusterung frühzeitig im Fokus, um ein harmonisches Farb- und Materialkonzept zu entwickeln. Warme Farbtöne und dezente Oberflächen bildeten die Grundlage des Gestaltungskonzepts. Für die Wandverkleidung wurde neben feinem Putz eine sandfarbene Natursteinoptik gewählt. Die Armaturen wurden bewusst schlicht in Weiß gehalten, während die Möblierung aus massivem Eichenholz mit einer dezent strukturierten Plissee-Front versehen wurde. Deckenhohe Spiegelflächen ersetzen herkömmliche Spiegel und sollen den Raum dadurch großzügiger wirken lassen.
Collage Material
Gestaltung
Um ein größeres Raumgefühl zu schaffen, wurde bei beiden Badezimmern auf flächen- abschließende Oberflächen und eine reduzierte Materialwahl gesetzt – keine Wand erhielt mehr als ein Material. Im Wannenbad wurde ein großzügiger Waschtischunterschrank integriert, um ausreichend Stauraum zu bieten. Im platzsparenden Duschbad hingegen wurde eine maßgefertigte Lösung aus eingefärbtem Corian gewählt, ergänzt durch einen kompakten Unterschrank und eine zusätzliche Ablagefläche, um die Funktionalität trotz begrenztem Raum zu gewährleisten. Flächenbündige Spiegel und Downlights unterstreichen das Konzept.
Grundriss & Rendering Duschbad
Rendering Wannenband & Vogelperspektive
Ausführung
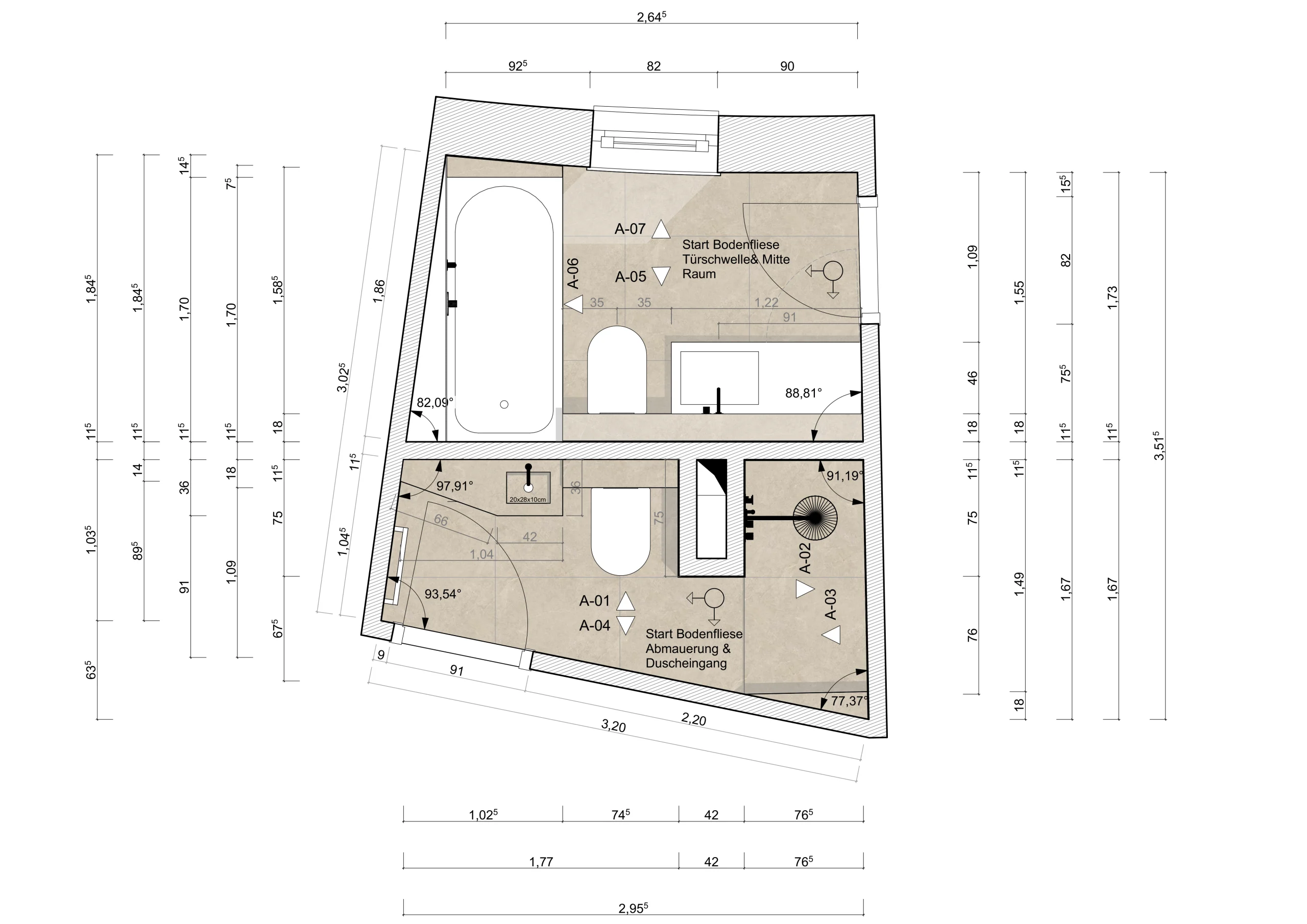
Neben der präzisen Positionierung der Objekte spielte das Fliesenraster eine zentrale Rolle. Mit einem Format von 80×80 cm wurde eine optische Großzügigkeit erzeugt, während die Handhabung dennoch praktikabel blieb. Ein weiterer Fokus lag auf der Kantenausführung: Statt Eckschutzschienen wurden alle Kanten auf Gehrung geschnitten, um eine klare und saubere Kubatur zu erzielen.
Grundriss
Anischten Duschbad
Ansichten Wannenbad
Werkzeichnung Waschtisch
Für den Waschtisch im Duschbad war aufgrund der zahlreichen Winkel eine detaillierte Werkszeichnung erforderlich. Dabei lag der Fokus darauf, die verfügbare Fläche maximal auszunutzen, ohne eine Kollision mit der Tür zu riskieren.
Grundriss









