MAV03 Nachhaltiges Entwerfen
Lokal
Regionale Lebensmittel - Nachhaltige Bauweise
Markthalle am Flugplatz
Nachhaltig geplante Bauweise integriert Anbau, Verarbeitung und Verkauf regionaler Lebensmittel an einem Ort, um umweltfreundlichen Konsum zu unterstützen.
WiSe 22/23
Betreuung: Prof. Dr. Alfred Breukelmann & Prof. Matthias Pätzold
Zusammen mit: Mouhammad Rashed Aseel
Perspetive Süd-Ost
Aufgabe
Im Seminar MAV-03 soll ein Entwurf für einen „grünen“ Supermarkt im Gewerbepark Nord in Hildesheim entwickelt werden. Ziel des Projekts ist es, Produktion und Verkauf in einem Gebäude zu vereinen, um umweltgerechten Konsum zu fördern. Der Fokus soll auf regionalen Lebensmitteln sowie nachhaltigen Konzepten liegen.
Konzeptidee
Die Hauptidee des Projekts besteht darin, ein Gebäude zu entwerfen, das den Einkauf mit dem Anbau und der Verarbeitung von Lebensmitteln verbindet und diese Prozesse für die Nutzer erlebbar macht. Neben dem Benutzererlebnis soll das Gebäude durch kreislaufgerechte Konstruktion überzeugen, die am Ende ihrer Nutzungsdauer sortenrein demontiert oder für neue Zwecke umgebaut werden kann. Für die Energieversorgung des Gebäudes wird auf nachhaltige Quellen wie Geothermie und Luftwärme gesetzt, um einen ressourcenschonenden Betrieb sicherzustellen.
Grundstück & Umgebung
Das 6.430 m² große Planungsgrundstück liegt im Gewerbepark Nord, angrenzend an die Hildesheimer Stadtteile Drispenstedt und Himmelstür. Es handelt sich um ein ehemaliges Kasernengelände, das heute als Freifläche zwischen Junkersstraße und Schinkelstraße zur Verfügung steht. Umgeben ist das Areal von Lagerhallen, Straßen und einer vielfältigen Unternehmenslandschaft aus IT, Logistik, Dienstleistungen und Automobilbranche.
Der Standort zeichnet sich durch eine hervorragende Verkehrsanbindung aus: Nähe zur Bundesstraße 6, Autobahn A7 und eine Entfernung von nur 3,4 Kilometern zum Hildesheimer Zentrum. Mit dem Auto ist das Gebiet in etwa 5 Minuten erreichbar, während Fußgänger und Radfahrer längere Wege über den Lerchenkamp in Kauf nehmen müssen. Aufgrund der dezentralen Lage wird der Gewerbepark vorwiegend während der Arbeitszeiten gezielt aufgesucht und weniger als Ort für spontane Aktivitäten genutzt.
Städtebauliche Setzung
Die Erschließung erfolgt zweiseitig über Junkers- und Schinkelstraße. Ein autofreier Zugang führt Fußgänger und Radfahrer über einen Bereich mit Wochenmarkt und Außengastronomie zum Haupteingang. PKW-Verkehr und Anlieferung sind klar getrennt, wobei die Logistik außerhalb der Öffnungszeiten erfolgt. Repräsentative Fassaden richten sich zur Junkers- und Schinkelstraße.
Architektur
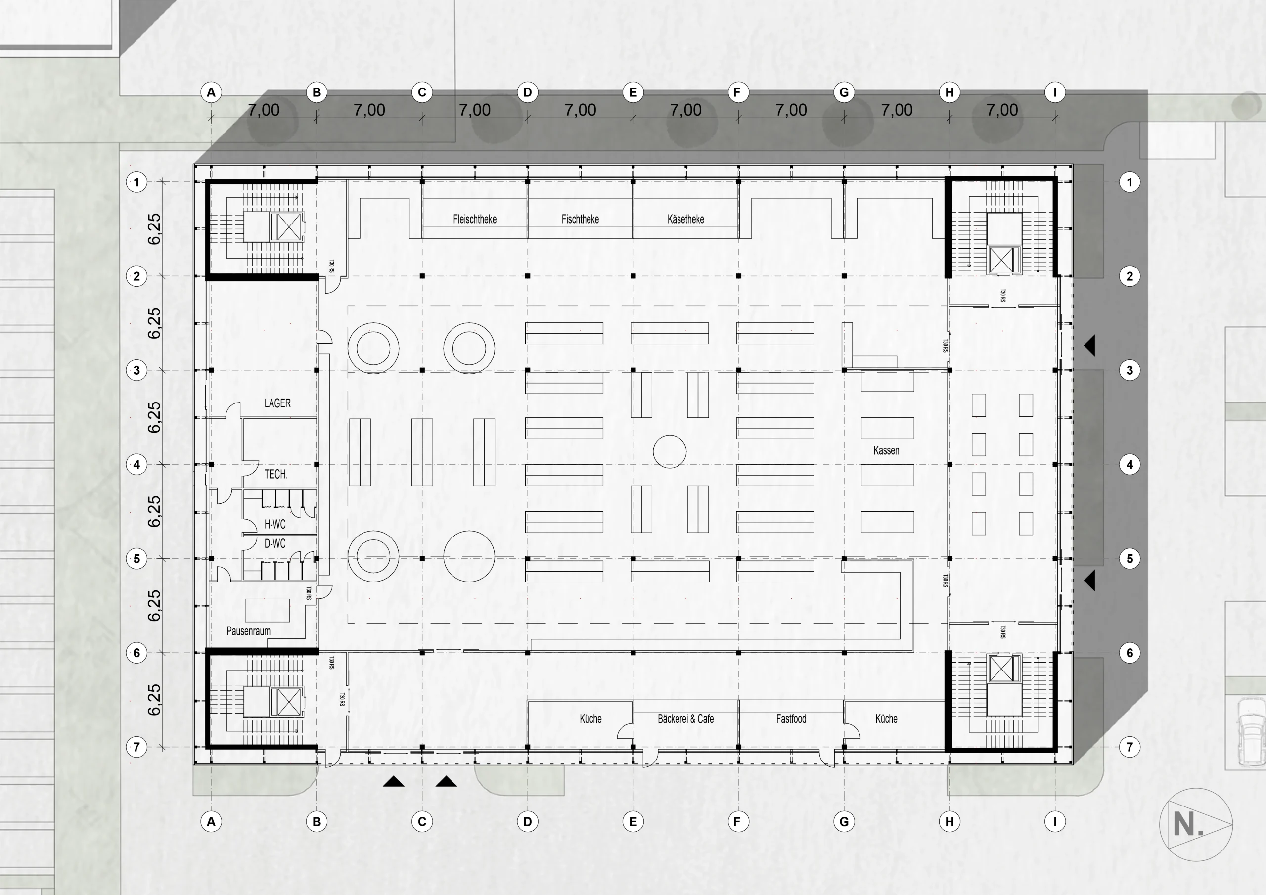
Die 3-geschossige Markthalle LOKAL erstreckt sich über eine Grundfläche von 2.150 m² und erreicht eine Höhe von 14,2 m. Ihr Konzept basiert auf vier zentralen Säulen: Green Farming, Einzelhandel, Gastronomie und Bildung
Diese Aspekte werden innerhalb des Gebäudes sowohl funktional integriert als auch für die Besucher erlebbar gemacht.
Die Hauptzugänge befinden sich an der Ost- und Nordseite des Gebäudes. Zusätzlich gibt es an der Südseite einen Nebeneingang für Zulieferungen und Personal. Die oberen Geschosse werden über vier Treppentürme sowie Fahrstühle auf allen Seiten des Gebäudes erschlossen, um eine effiziente und barrierefreie Erreichbarkeit zu gewährleisten
Konzept EG
Innenansicht EG
Ansicht Nord
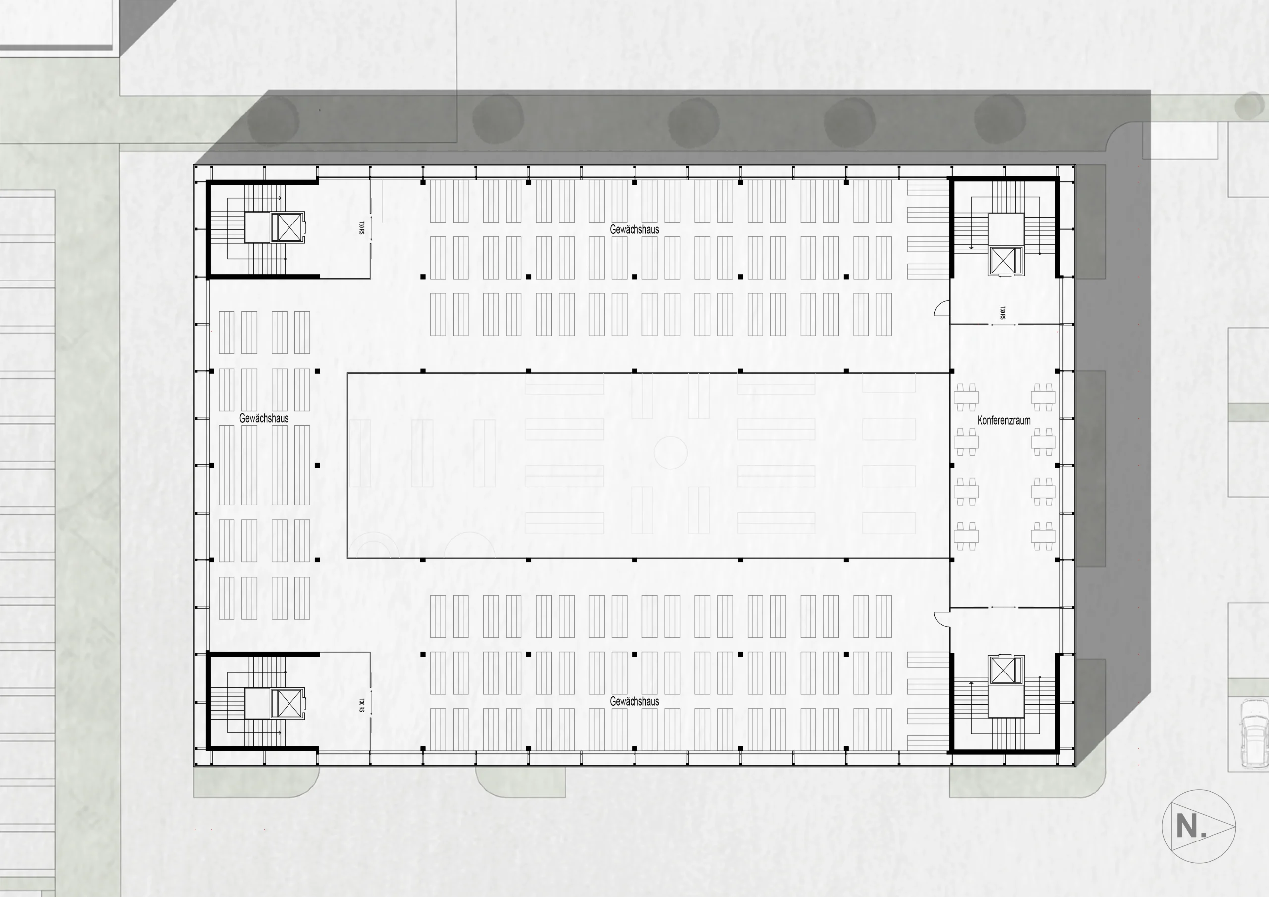
Konzept OG
Ansicht Ost
Konzept DG
Zusätzlich steht ein 165 m² großer Raum zur Verfügung, der flexibel für Seminare oder Veranstaltungen genutzt und angemietet werden kann.
Ansicht Süd
Ansicht West
Nachhaltigkeitskonzept
Die Planung basiert auf den drei Säulen der Nachhaltigkeit: Ökologie, Ökonomie und Soziales, mit folgenden Schwerpunkten:
- Ressourcenschonung in der Konstruktion:
Einsatz von Holz-Skelettbau und Recyclingmaterialien.
Reduktion der Bauteilvielfalt zur Ressourcenschonung und geringeren Umweltbelastung.
Flexibilität durch einheitliches Achsraster (6,25m x 7m). - Minimierung der Lieferwege:
Kombination von Gewächshaus, Einzelhandel und Gastronomie. - Optimierte Bauform:
Kompakte Kubatur mit günstigem Oberfläche-zu-Volumen-Verhältnis (A/V-Verhältnis)
Energiekonzept
Das Gebäude ist in beheizte (51,7 %) und unbeheizte (48,3 %) Bereiche unterteilt. Beheizt sind das Erdgeschoss, das Café im 1. Obergeschoss und der Seminarraum im 2. Obergeschoss; Treppenkerne und der Gemüseanbau bleiben unbeheizt.
Fassade, Dach und Decken sind einheitlich konstruiert, um eine homogene Außenhaut, einfache Nachrüstungen und flexible Nutzung zu ermöglichen. Eine durchgängige Dämmung der Bodenplatte verhindert Wärmebrücken. Dieses Konzept verbindet funktionale Konstruktion mit einem effizienten Energiekonzept
Heizbereiche
Heiz- & Kühlperiode
Das Heiz- und Kühlsystem basiert auf einer vierteiligen Kombination aus einer Windkraftanlage, einer Eisspeicherheizung, einer hinterlüfteten Fassade und Dachfenstern.
- Winterfall:
Windkraft – Stromverosrgung Eisspeicher & Haustechnik.
Eisspeicherheizung- Heizung des Gebäudes über die Fußbodenheizung.
Fassade – Wäremerstrag durch Aufheizen der Luft in der Zwischenebene.
Dachfenster – Wärmeertrag durch Lichteinfall. - Sommerfall
Windkraft – Stromverosrgung Eisspeicher & Haustechnik.
Eisspeicherheizung- Kühlung des Gebäudes über die Fußbodenheizung.
Fassade – Hinterlüftung führt warme Luft nach außen ab.
Dachfenster – Aufsteigende warme Luft kann durch Querlüften abgeführt werden.
Konstruktion
Die Markthalle LOKAL ist ein Holzskelettbau mit einem klaren Achsraster von 6,25 m x 7 m. Die Träger und Stützen aus 30 cm x 30 cm Brettschichtholz spannen über 7 m, während die Decken aus 33 cm starken Lignatur-Elementen bestehen. Die Decken werden als Fertigteile ausgeführt, um einen hohen Vorfertigungsgrad zu erzielen. Das Tragwerk wird durch symmetrisch in allen 4 Ecken platzierte Treppenkerne aus Ortbeton ausgesteift. Die Fassade ist zweischalig hinterlüftet und besteht aus einer verglasten Pfostenriegelfassade, einer Luftschicht und einer Profilbauglasfassade. Das Konzept setzt auf langlebige Materialien wie Profilbauglas, Konstruktionsvollholz und Stahlverschraubungen, die bei Bedarf leicht repariert, demontiert oder wiederverwendet werden können
Detail Fassade & Dach
Sprengaxo Konstruktion + Spannrichtung Decken + Abstand Windräder
Weitere Ansichten
Ostansicht
Nordansicht



























