Masterthesis
3 BLÖCKE
Modulares Leben in Hildesheim
WiSe 23/24
Betreuung: Prof. Matthias Pätzold & Ulrike Knauer
Herausforderung
Das Wohnen in Deutschland, auch in Hildesheim, steht vor Herausforderungen wie steigenden Anforderungen an Nachhaltigkeit, bezahlbaren Wohnraum und einer wachsenden Zahl von Einpersonenhaushalten (45,3 % bis 2040). Der Fokus auf Großwohnungen und die ungleiche Wohnflächenverteilung erschweren die Situation. In Hildesheim zeigt sich ein besonderer Bedarf an kleineren, bezahlbaren Wohnungen, dem durch soziale Wohnraumförderung begegnet werden könnte.
Konzeptidee
Diese Arbeit entwickelt ein Konzept für flexible, modulare Architektur im sozialen Wohnungsbau. Im Fokus stehen anpassbare Wohnmodule, die sich individuell gestalten und bei Bedarf verändern lassen, um den Anforderungen einer dynamischen Gesellschaft gerecht zu werden.
Durch eine einfache Rasterstruktur und reversible Verbindungstechniken entstehen vielfältige Wohnungstypen, die sich leicht anpassen, neu anordnen oder demontieren lassen. Nachhaltigkeit wird durch wiederverwendbare Materialien sichergestellt und mit Flexibilität kombiniert.
Grundstück & Umgebung
Schwarzplan Baulücke
Einflüsse
Einflüsse
Städtebauliche Setzung
Um den Lärm der Bahnstrecke abzuschirmen, werden die ersten Baukörper als schützende Lärmschutzwand gesetzt und anschließend zu einem geschlossenen Block ergänzt. Wegeverbindungen durchbrechen den Block, um eine autofreie innere Erschließung zu ermöglichen, während der Autoverkehr außen um den Block herumgeführt wird. Eine Bushaltestelle entsteht am südöstlichen Ende.
Zur Verdichtung werden im Blockinneren Punktbauten ergänzt, und ein eingerückter Querriegel teilt das Quartier in zwei Abschnitte. Hofseitige Ausrichtungen schützen vor Lärm, während die südlichen Riegel zur Nachbarschaft hin orientiert sind. Ein begrüntes Hofareal dient als Erholungsraum für Bewohner und Besucher.
Schwarzplan mit Setzung
Struktur
Lageplan
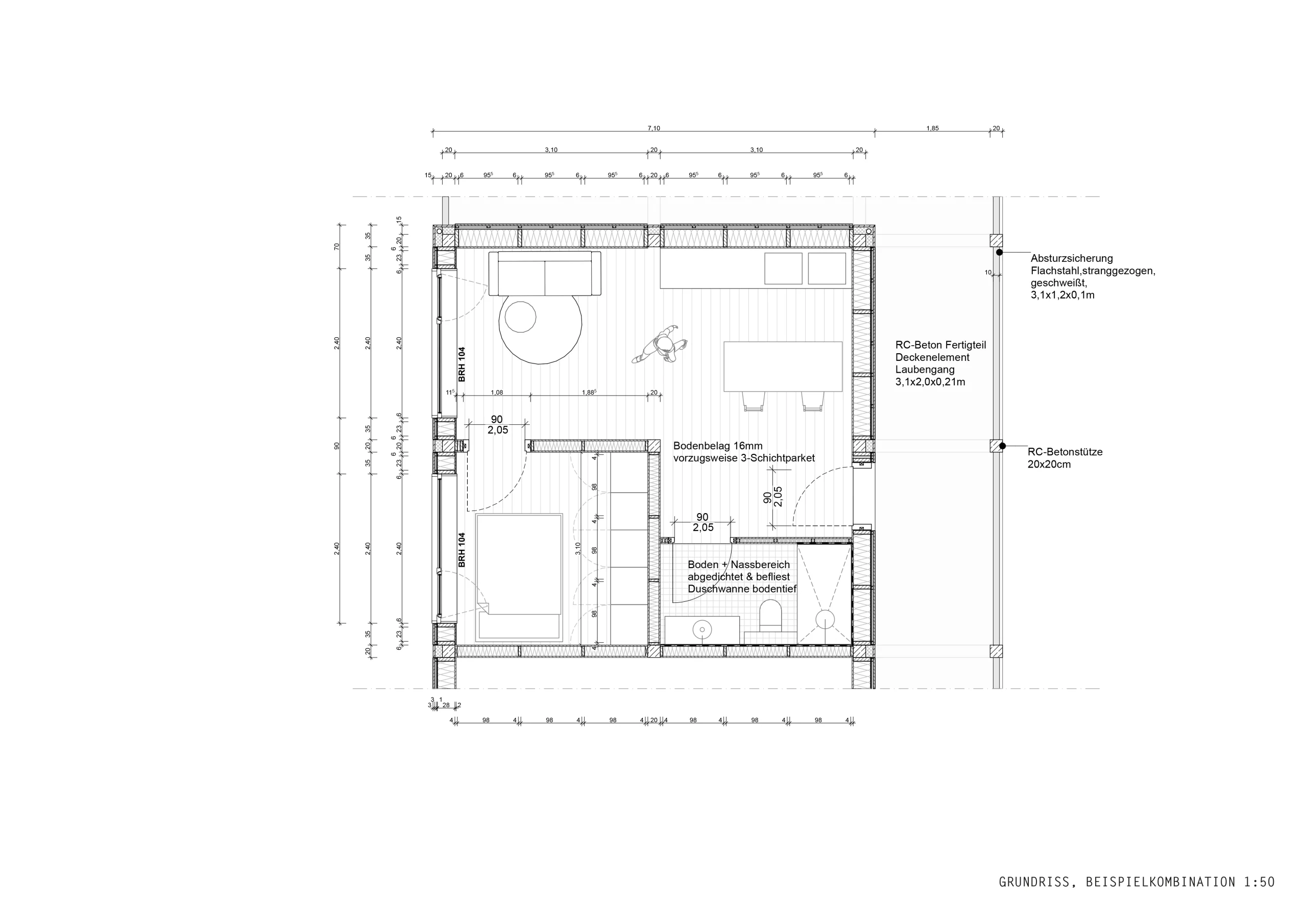
3 Blöcke - Konzept
Die Raumplanung basiert auf einem quadratischen Rastersystem von 3,3 x 3,3 Metern, das sich an den Anforderungen eines rollstuhlgerechten Bads orientiert. Dieses Bad benötigt lichte Maße von 3,1 x 3,1 Metern (9,61 m²), wobei zusätzlich 20 Zentimeter für raumtrennende und statische Elemente berücksichtigt wurden.
Weitere Raumvarianten sind, ein barrierefreies Bad mit Vorflur, eine offene Küche sowie einen flexiblen Raum, der als Schlaf-, Wohn-, oder Arbeitszimmer genutzt werden kann.
Alle Räume basieren auf dem 3,3 x 3,3 Meter Raster.
Größe & Nutzung
Varianten nach Nutzeranzahl
Modulteil-Tausch
Wohn-, Schlaf- oder Arbeitsmodul
Module: Bad rollstuhlgerecht, Bad und Küche
Konstruktion
Größe & Nutzung




























