2023
Upgrade
Holzhaus
Upgrade eines Holzhauses eines bekannten Fertighausbauers.
Planung der Böden und Überarbeitung der Badkonzepte.
Zwei helle Bäder für Kinder und Eltern sowie ein „Moody“ Gästebad.
Thema
Eine vierköpfige Familie baut ein neues, lichtdurchflutetes Holzhaus mit einem bekannten Fertighausbauer. Die vorgeschlagenen Möbel und Materialien entsprechen jedoch nicht dem Geschmack der Familie, weshalb sie sich an mich gewandt haben, um eine individuelle und passgenaue Lösung zu finden.
Ziel
Ziel der Neuplanung und Bemusterung war es, helle, freundliche Räume mit natürlichen Materialien zu schaffen. Der Einsatz von Holz, Naturstein und Edelstahl sollte eine harmonische Atmosphäre erzeugen. Das Raumkonzept wurde so gestaltet, dass es offen und weit wirkt.
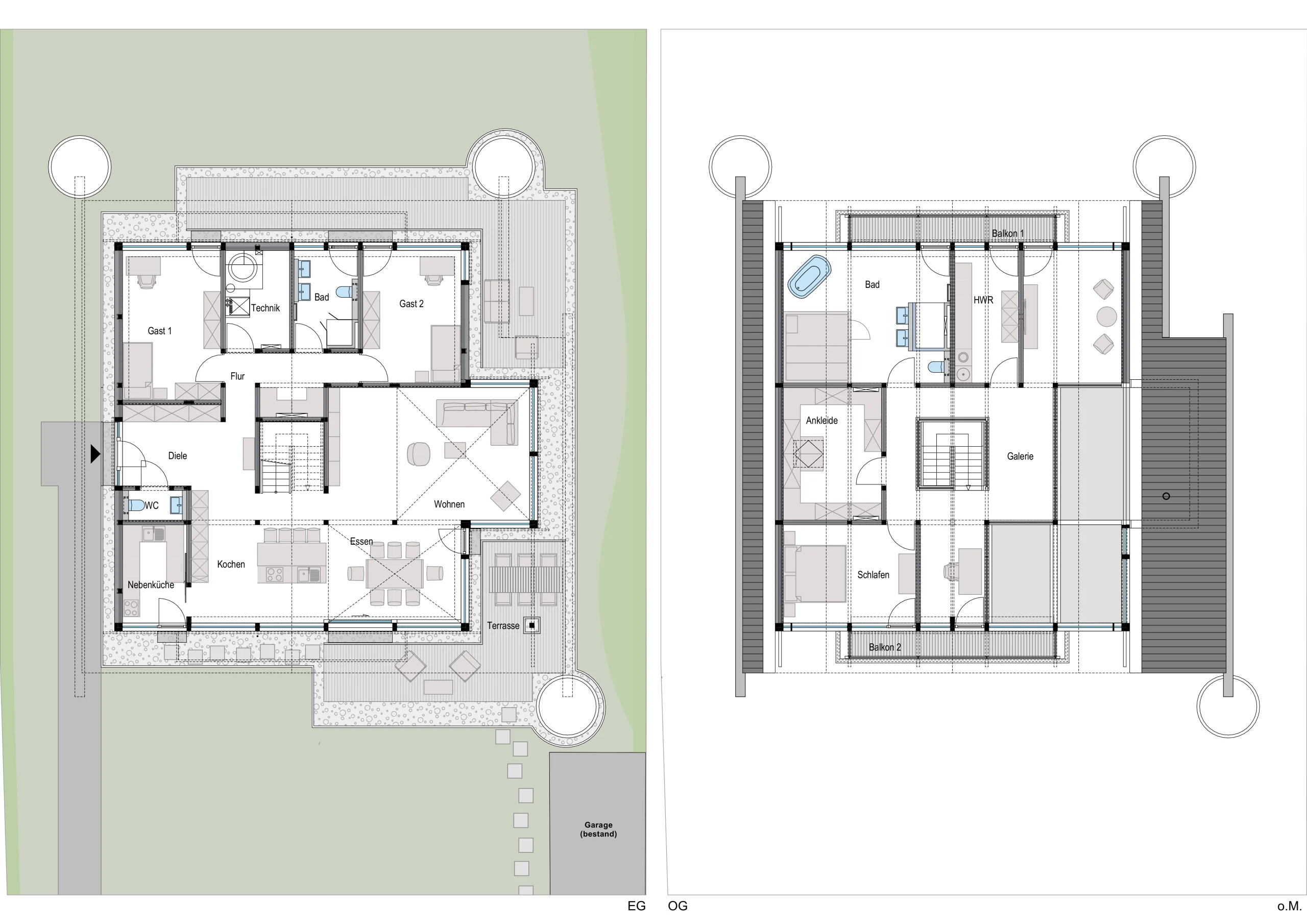
Grundriss
Der Wohnraum wurde mit großzügigen Landhausdielen ausgestattet, während das Kinder- und Elternbad in beigem Kalkstein mit einer angestrahlten, gebürsteten Oberfläche gestaltet wurde. Die Waschbecken wurden durch Waschtische ersetzt und die Duschen wurden offen und großzügig konzipiert.
Einzig das Gästebad sollte im Kontrast zum restlichen Haus stehen und in einem dunklen Look gestaltet werden. Hier kommen schwarze Armaturen und belgischer Blaustein zum Einsatz.
Einzig das Gästebad sollte im Kontrast zum restlichen Haus stehen und in einem dunklen Look gestaltet werden. Hier kommen schwarze Armaturen und belgischer Blaustein zum Einsatz.
Grundriss EG & OG
Änderung EG
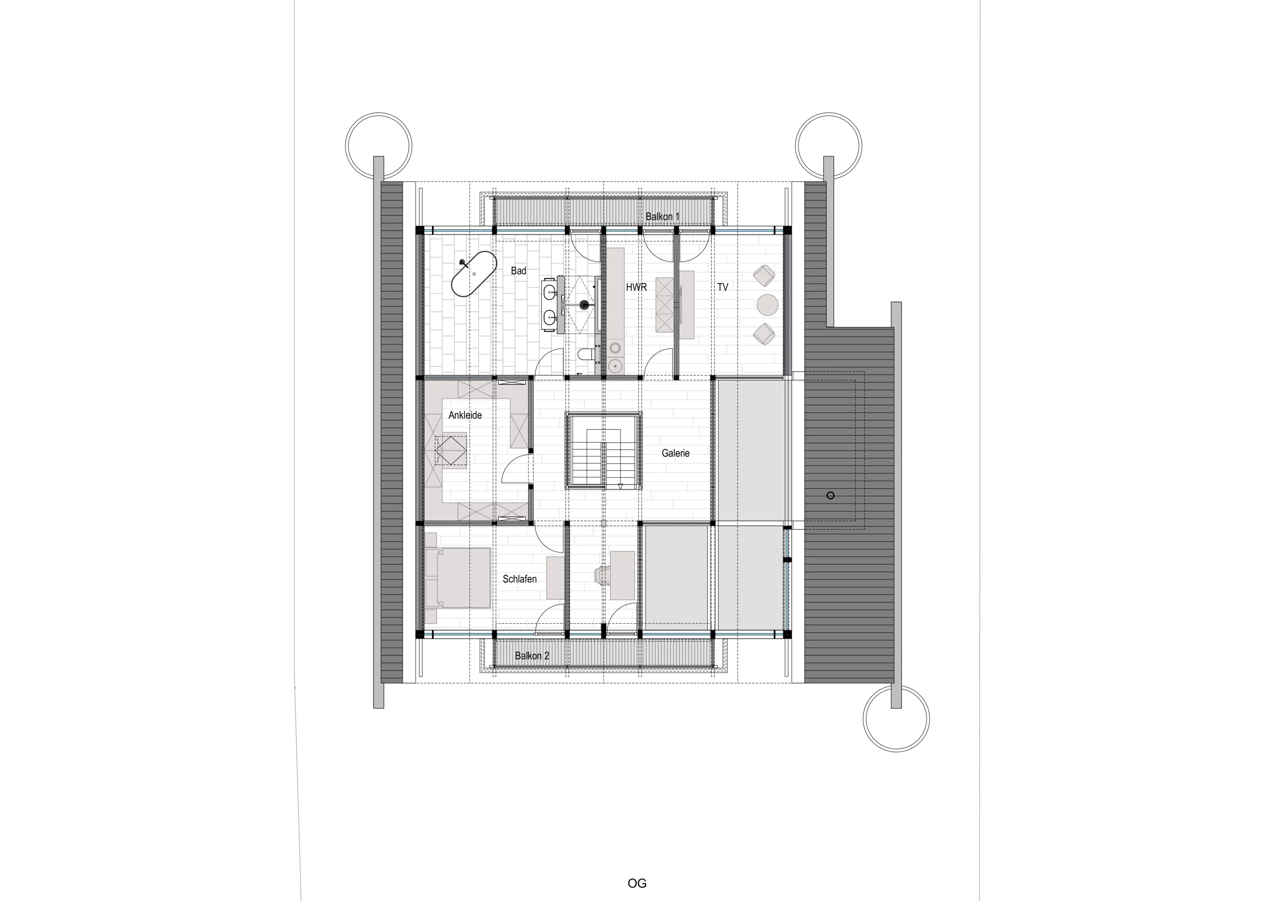
Änderung OG
Bad EG
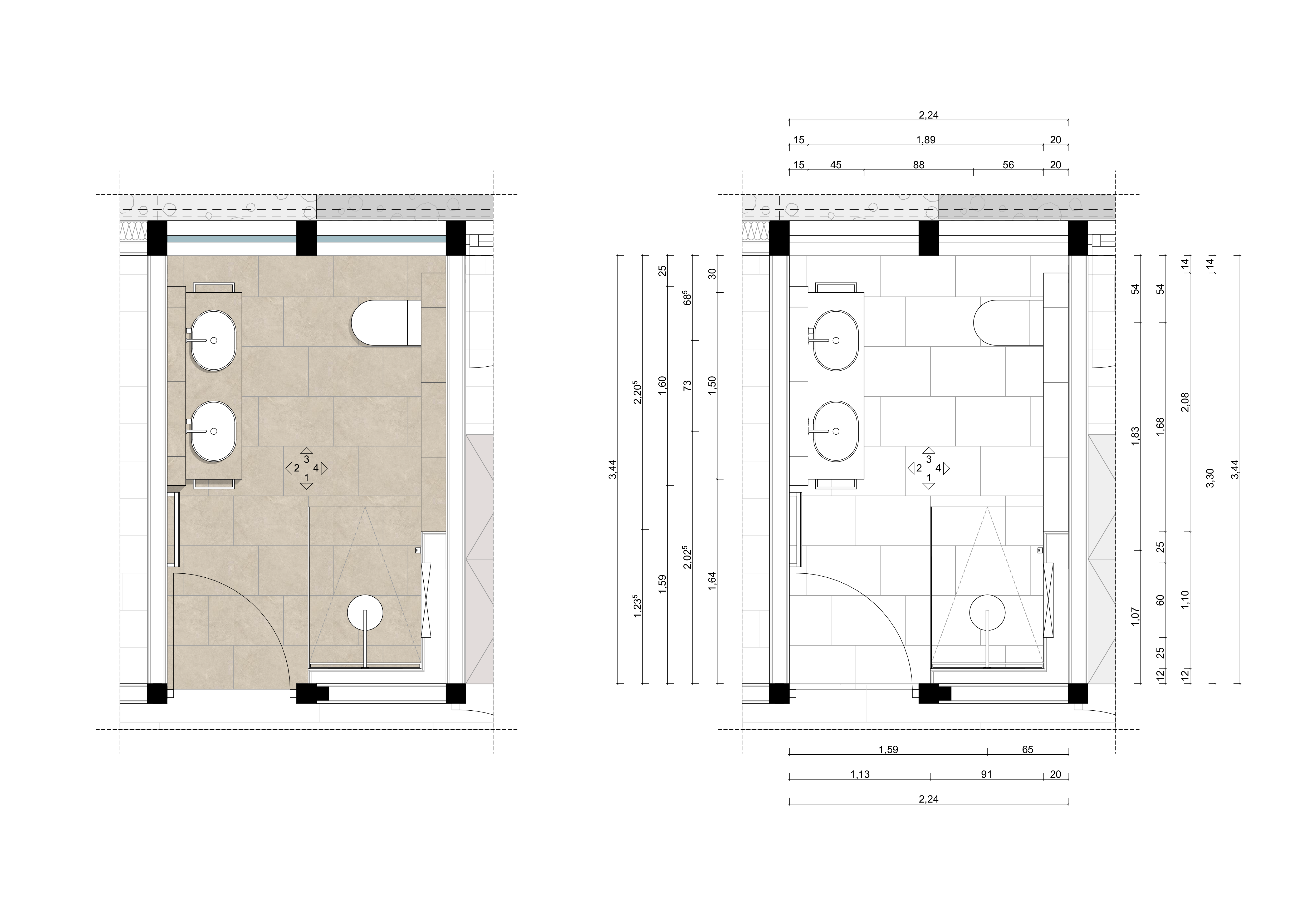
Das Bad im Erdgeschoss ist für die beiden Kinder vorgesehen, deren Zimmer direkt an das Bad angrenzen. Jeder hat seinen eigenen Waschplatz, um sich gemeinsam für die Schule fertig zu machen. Die Waschschalen bestehen aus Corian, die Waschtischplatte sowie die Wände und Böden sind in Kalkstein gehalten. Die Armaturen in Edelstahl unterstreichen das moderne Design.
Grundriss & Grundriss vermaßt
Ansichten
Ansichten vermaßt
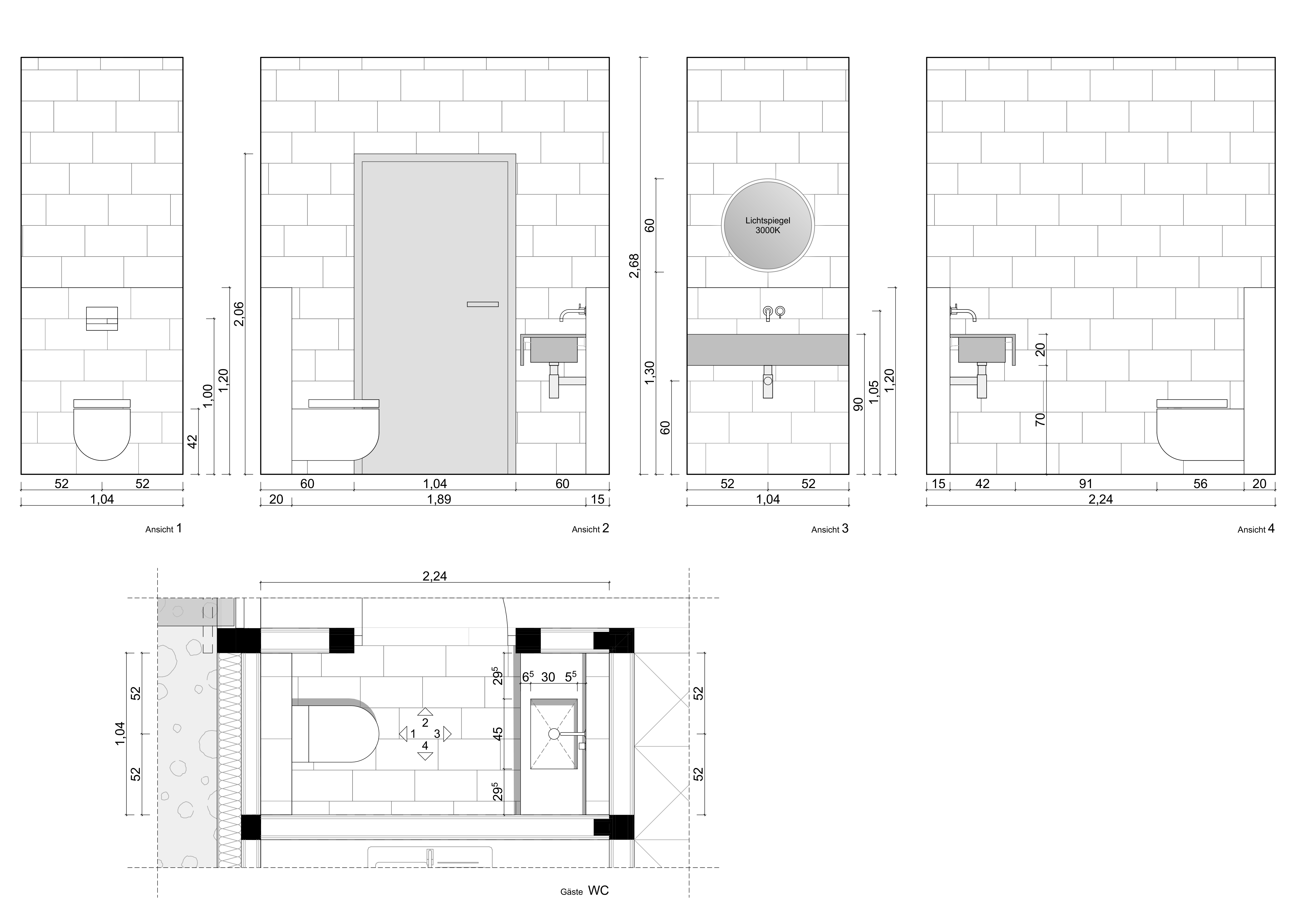
WC EG
Das Gästebad am Eingang des Hauses setzt einen bewusst dunklen Akzent im Gegensatz zum restlichen, hellen Erscheinungsbild. Es ist vollständig in Blaustein gehüllt, sogar der Waschtisch wurde in Blaustein maßgefertigt. Die mattschwarzen Armaturen und das WC fügen sich dezent in das elegante, dunkle Design ein.
Pläne
Pläne vermaßt
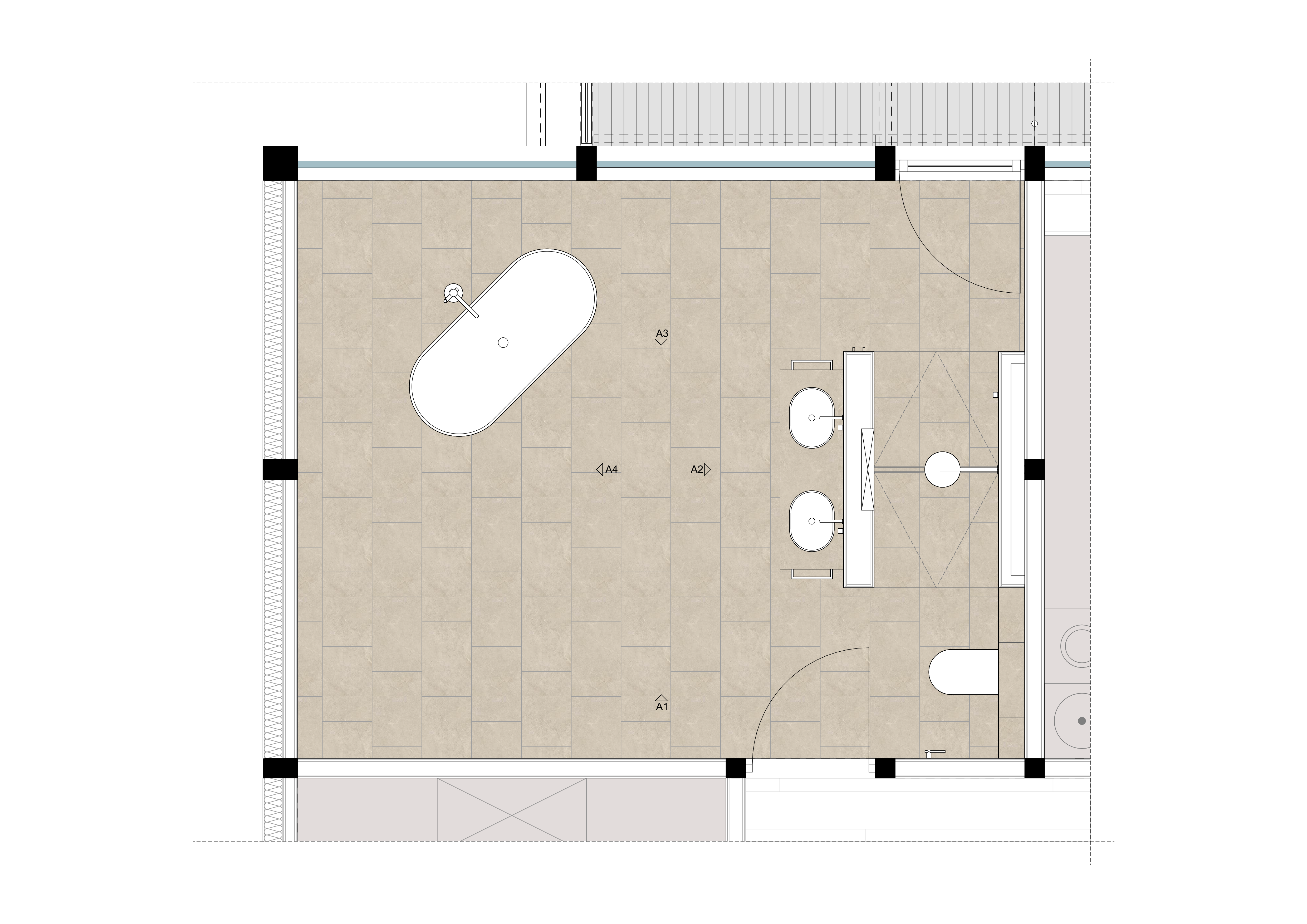
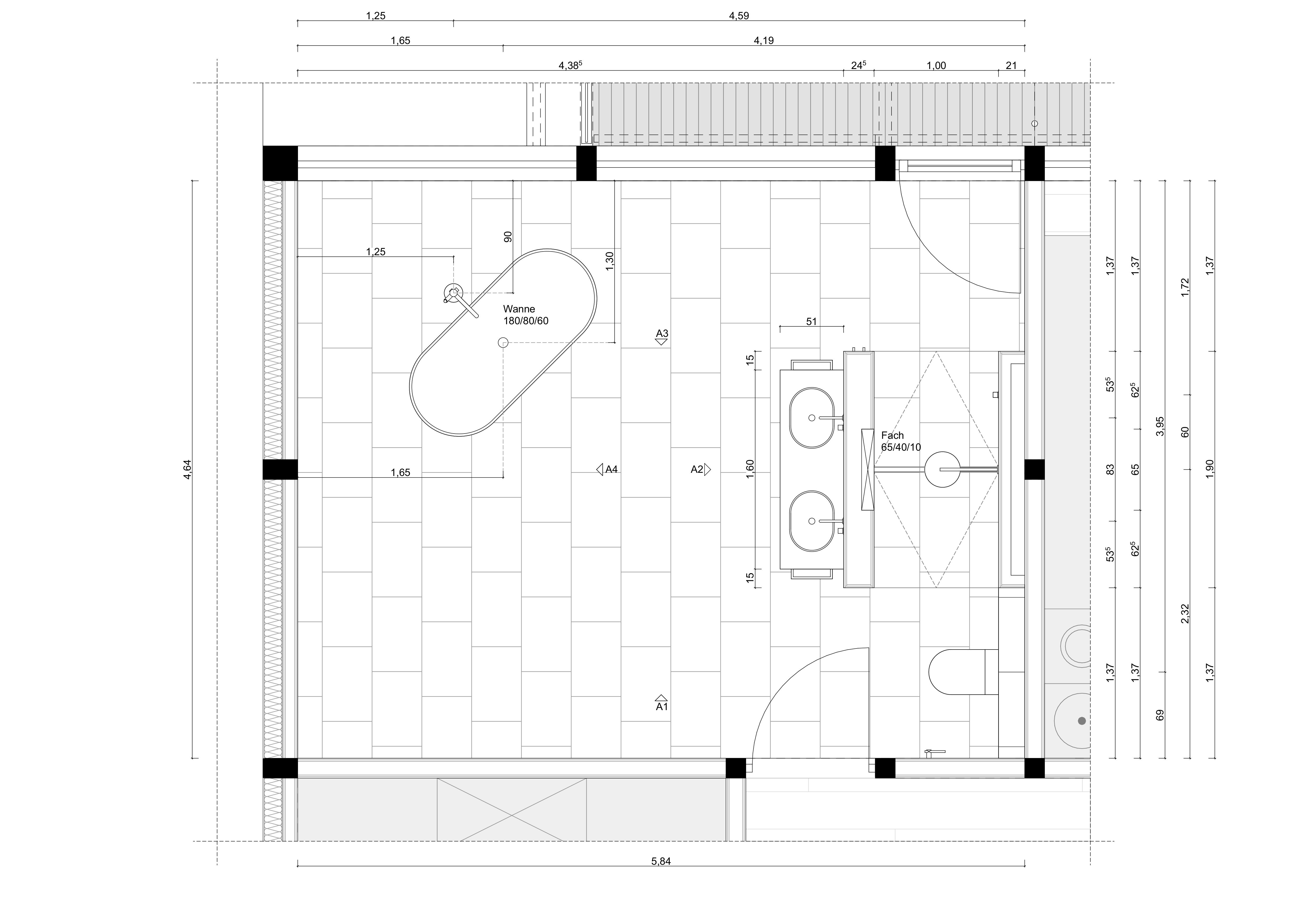
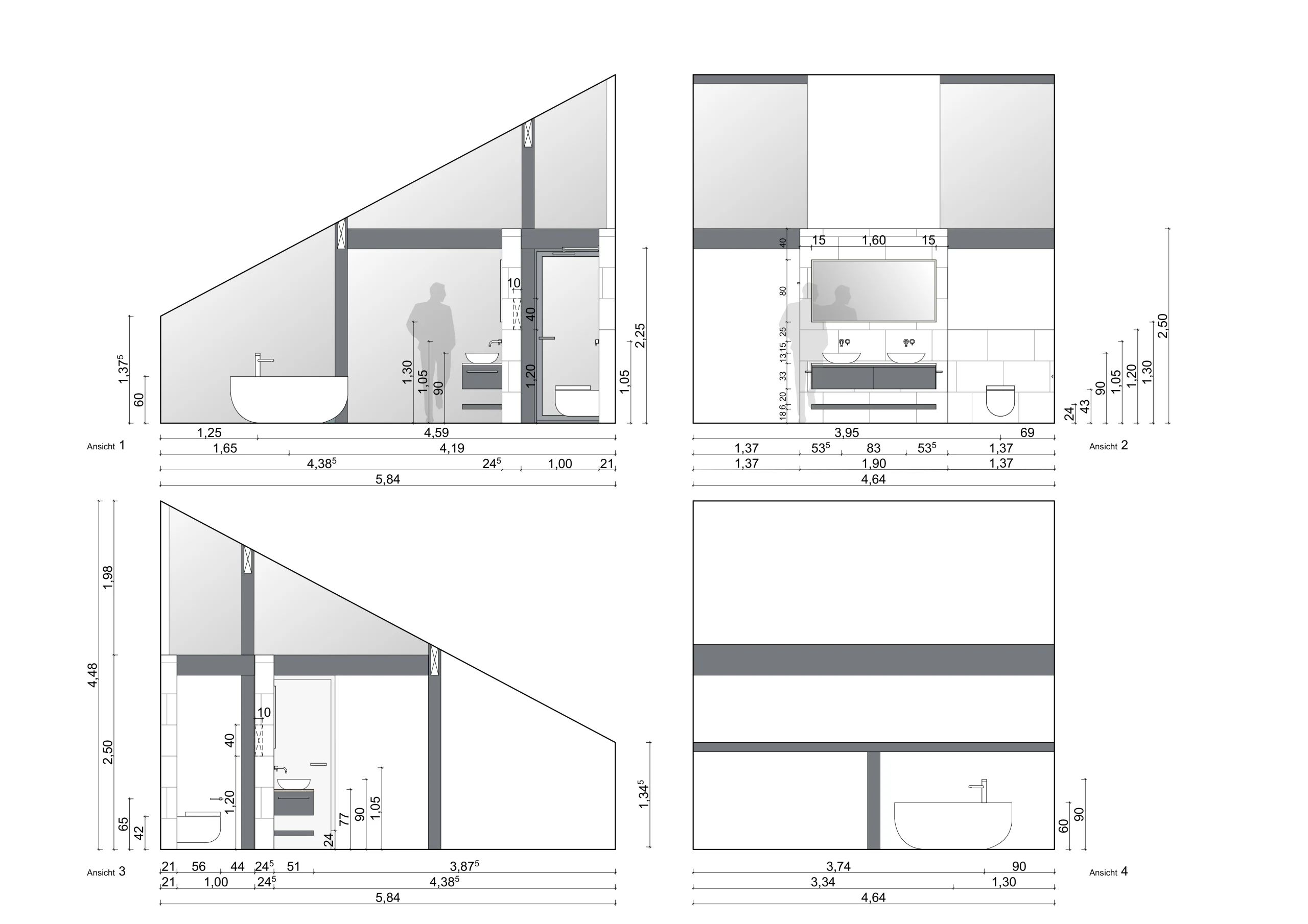
Bad OG
Das Elternbad im Obergeschoss beeindruckt mit einem großzügigen, offenen Design. Eine freistehende Mauer bildet sowohl die Basis für die Waschtischanlage als auch eine sanfte Trennung zur Dusche. Diese ist so konzipiert, dass sie von beiden Seiten begehbar ist.
Abgerundet wird das Bad durch eine freistehende Badewanne, die ikonisch im Raum positioniert ist. Ebenfalls wie das Kinderbad wurde auf die Kombination von Naturstein, Holz und Edelstahl gesetzt.
Abgerundet wird das Bad durch eine freistehende Badewanne, die ikonisch im Raum positioniert ist. Ebenfalls wie das Kinderbad wurde auf die Kombination von Naturstein, Holz und Edelstahl gesetzt.
Grundriss
Ansichten
Grundriss vermaßt
Ansichten vermaßt
marwin.bong@gmx.de
Phone
+49 176 31293549
Copyright © 2026 Divi. All Rights Reserved.
































