2019-2022

Alte Wäscherei

Von der Wäscherei zum Eigenheim

Umfassende Kernsanierung der ehemaligen, familiengeführten Wäscherei in ein zeitgemäßes Eigenheim.

Thema

Bei diesem Bauvorhaben stand die Umgestaltung eines Anbaus der elterlichen Wäscherei in ein modernes Wohnhaus im Vordergrund. Der Anspruch der Bauherren war, ein Gebäude zu schaffen, das äußerlich zurückhaltend wirkt, jedoch durch eine gehobene technische Ausstattung und ein elegantes Design überzeugt, ohne dabei protzig zu wirken.

Die Planung des Hauses sah zwei klar definierte Ebenen vor: eine private Ebene, die den Rückzugsbereich der Bewohner bildet, und eine öffentliche Ebene, in der Gäste empfangen werden können, ohne die Privatsphäre zu stören. Besondere Bedeutung wurde der Verbindung von Garage und einem Hobbyraum beigemessen, der mit einem Billardtisch und einem stilvollen Weinschrank ausgestattet ist – ein Ort für Freizeit und geselliges Beisammensein.

Ein weiteres zentrales Element des Entwurfs war ein repräsentatives Gästebad mit direktem Zugang zum Garten. Im oberen, privaten Bereich des Hauses entstand ein hochwertiger Wellnessbereich, der den Bewohnern einen abgeschiedenen Ort zur Entspannung bietet. Dieser exklusive Rückzugsort fügt sich nahtlos in die private Ebene ein und schafft eine harmonische Umgebung, die voll und ganz auf Erholung und Wohlbefinden ausgerichtet ist.

Grundrissplanung

Die geplante Raumabfolge gewährleistet einen klaren Ankunftsbereich, der sowohl über die Garage als auch über die Haustür erreicht werden kann. Im Erdgeschoss erwartet die Bewohner ein offenes Raumkonzept, in dem die Küche harmonisch mit dem Wohnzimmer verbunden ist. Zudem sind die Garage und der Hobbyraum miteinander verknüpft, was besonders für den Autoliebhaber von Vorteil ist.

Das Gästebad ist geschickt mit dem Windfang und dem Garten verbunden, um eine vielseitige Nutzung zu ermöglichen und den Nutzern einen komfortablen Zugang vom und zum Freien zu bieten.

Im Obergeschoss bildet der Elternbereich, der das Schlafzimmer mit einem Wellnessbereich vereint, einen ruhigen Rückzugsort. Diese beiden Bereiche können durch eine Schiebetür voneinander abgetrennt werden, um bei Bedarf Privatsphäre zu schaffen. Zusätzlich sind zwei weitere Räume als offener Arbeitsbereich und als flexibles Zimmer für eventuellen Zuwachs geplant. Diese Räume sind bewusst nicht zu stark überplant, um zukünftige Anpassungen und individuelle Änderungen zu erleichtern.

Wohnzimmer

Grundriss vor Umbau

Zonierung

Öffnungen & Blickrichtungen

Grundrissplanung

Planung Böden & Terrasse

Küche

Gartenblick Wohnzimmer

Wohnzimmer

Hobby / Garage

Hobby / Garage

Bad EG

Das Gästebad ist so konzipiert, dass es vielseitig genutzt werden kann: Es dient sowohl als tägliches Bad für den Morgen als auch als Gästebad. Ein geräumiger Waschtisch bietet ausreichend Stauraum, ergänzt durch einen passenden Spiegel, der das morgendliche Fertigmachen erleichtert. Der Duschbereich mit einer Breite von 1,2 Metern sorgt dafür, dass ausreichend Platz zum Duschen vorhanden ist.

Das Bad verfügt über zwei separate Türen: eine führt ins Hausinnere, während die andere einen direkten Zugang zum Garten bietet. Diese Anordnung ermöglicht eine flexible Nutzung: von innen als Gäste- oder Morgenbad und von außen als WC während Gartenpartys. Zudem fungiert der Zugang vom Garten als praktische Dreckschleuse, die eine einfache Reinigung nach der Gartenarbeit ermöglicht. Dies ist möglich, weil die Dusche über zwei Türen zugänglich ist, die den direkten Weg ins Hausinnere bieten.

Blick vom Flur

Pläne

Pläne vermaßt

Blick vom Flur

Waschplatz 1

2

3

Handtuchwärmer

WC + Dusche

Dusche 1

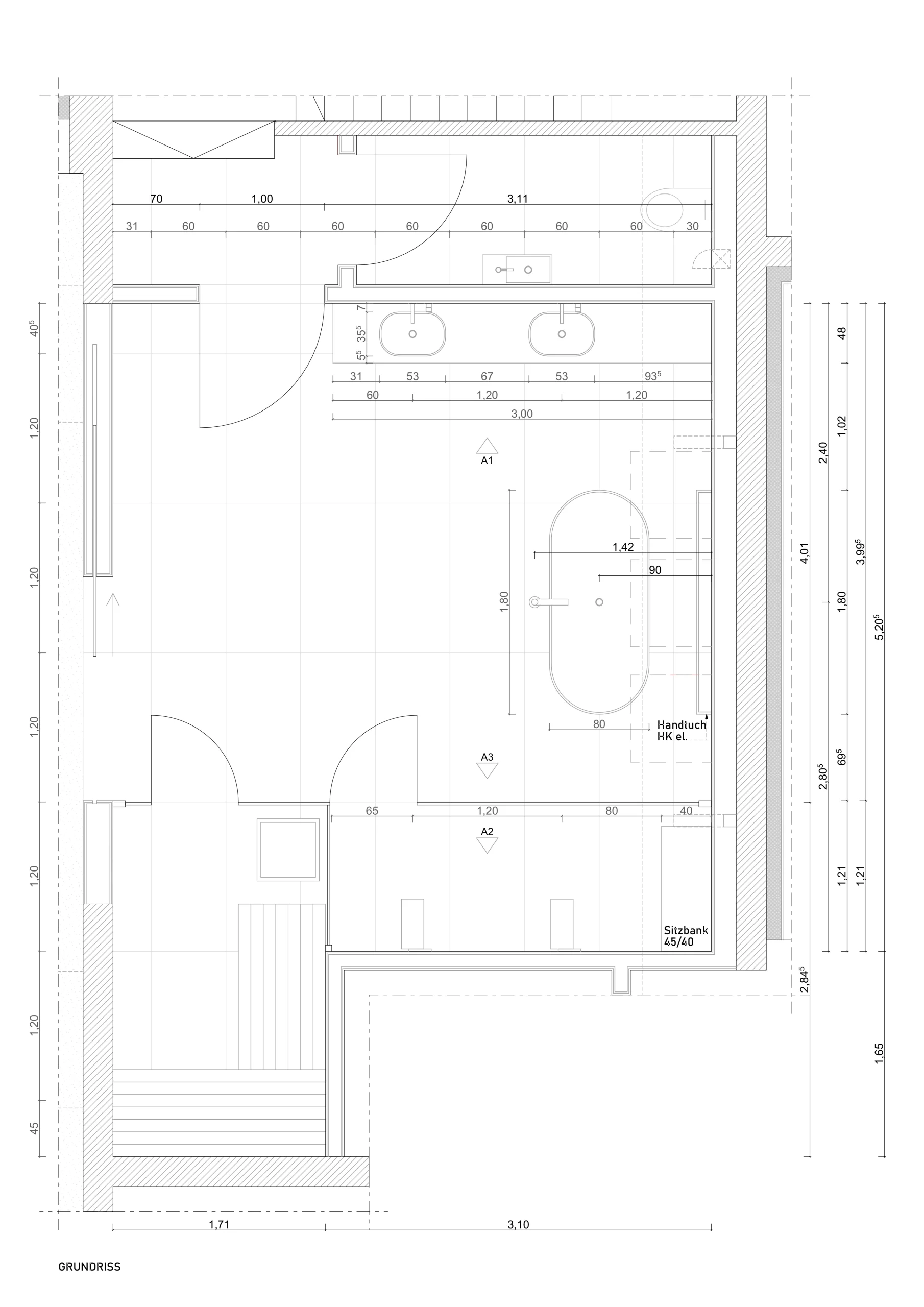
Bad OG

Im großen Bad, dem Wellnessbereich steht die gemeinschaftliche Nutzung durch die Hausbesitzer im Vordergrund. Hier sind Bereiche für gemeinsames Saunieren, Duschen und das morgendliche Fertigmachen vorgesehen. Die Badewanne, die ebenfalls in die gemeinsame Nutzung integriert wird, sollte nicht in einer unauffälligen Ecke platziert werden, sondern als optisches Zentrum des Bades fungieren. So wird sie zu einem einladenden Element, das den Raum prägt und eine entspannende Wohlfühlatmosphäre schafft.

Blick vom Schlafzimmer

Grundriss

Grundriss vermaßt

Ansichten A1 & A2

A1 & A2 vermaßt

Ansicht A3 & A3 vermaßt

Dusche /Sauna
Waschtischkombination 1
2
Badewanne 1
2
Dusche 1
2
3

WC OG

Das WC wurde bewusst vom  Bad abgetrennt, um den Nutzern mehr Privatsphäre zu ermöglichen und ein ungestörtes Gefühl zu schaffen. Diese Trennung erlaubt es, das Bad weiterhin zu nutzen, während das WC in Anspruch genommen wird. Zudem bietet der separate Raum einen Rückzugsort, der ausreichend Abstand zum Schlafzimmer hat, um den Partner nicht zu wecken, dabei jedoch nah genug bleibt.

Blick vom Flur
Pläne
Pläne vermaßt

Waschtisch 1

2

Email

marwin.bong@gmx.de

Phone

+49 176 31293549
Copyright © 2025 Divi. All Rights Reserved.